Bachelard Wagner Architekten Bachelard Wagner Architekten Bachelard Wagner Architekten
  • Projekte
    • Auswahl
    • Status
    • Programm
    • Jahr
    • Auftragstyp
  • Büro
    • Kontakt
    • Team
    • Forum
  • Deutsch
  • English
Schwarzplan Lysbüchel Basel
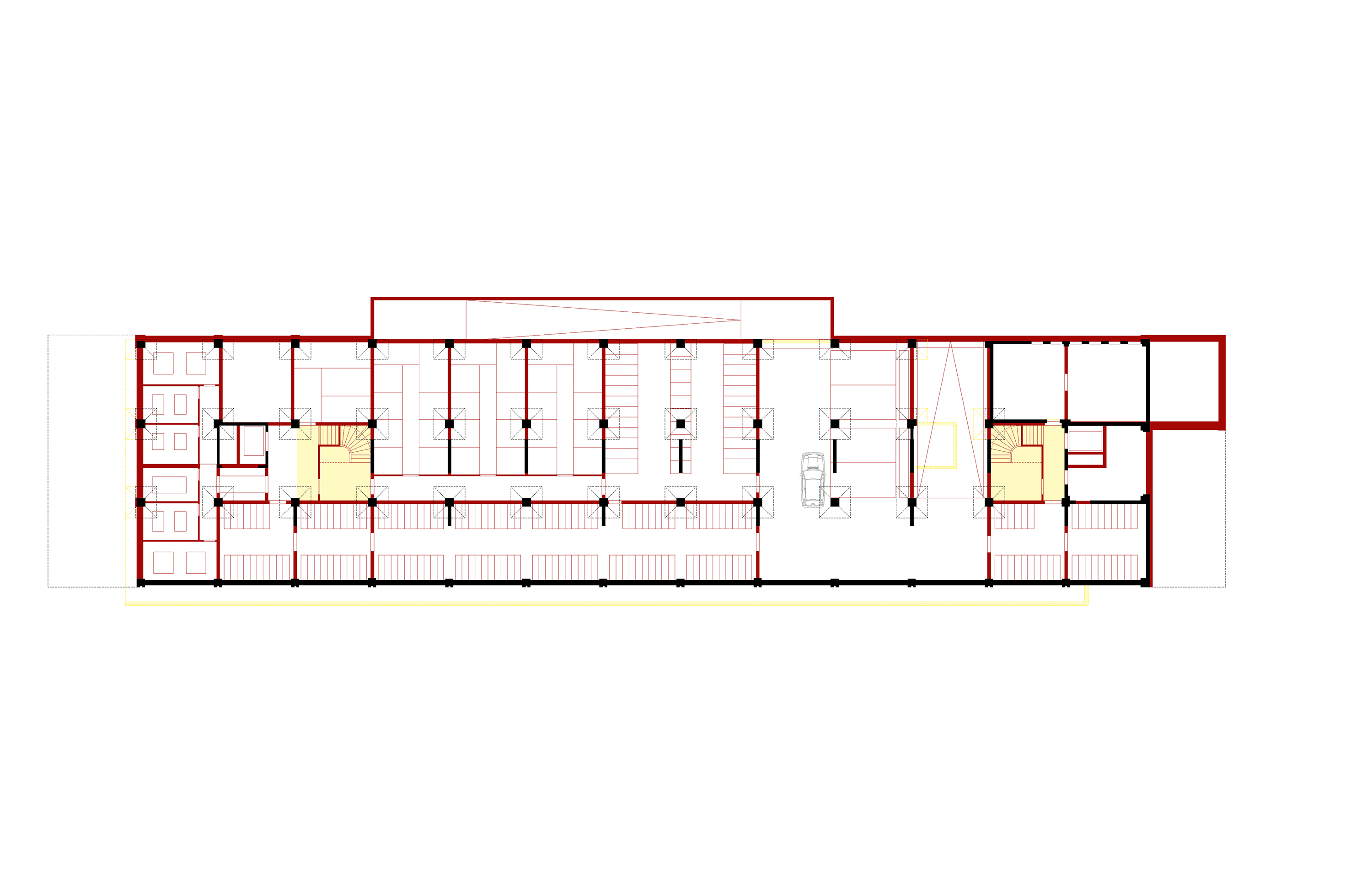
Erdgeschoss
1. Obergeschoss
2. Obergeschoss
3. Obergeschoss
4. Obergeschoss
5. Obergeschoss
1. Untergeschoss
Querschnitt
Längsschnitt
Stirnfassaden
Fassade
Fassade
Schwarzplan Lysbüchel Basel
Erdgeschoss
1. Obergeschoss
2. Obergeschoss
3. Obergeschoss
4. Obergeschoss
5. Obergeschoss
1. Untergeschoss
Querschnitt
Längsschnitt
Stirnfassaden
Fassade
Fassade
1/

Umbau Lagergebäude zu Wohnhaus Lysbüchel Basel

Data
Text

Jahr: 2018
Auftragstyp: Studienauftrag / 2.Platz
Status: Nicht realisiert
Programm: Wohnen, Dienstleistung

Aufgabe: Umbau Lagergebäude in Wohnhaus mit Gewerbeanteil
Anzahl Wohnungen: 53
Anzahl Ateliers: 7
BGF gesamt: 7’957.6 m²

Bauherrschaft: Stiftung Habitat
Architektur: Bachelard Wagner Architekten, Basel
Mitarbeit: Anouk André

Mit der Entscheidung, die Grundstruktur des ehemaligen Weinlagers zu erhalten und als Bestandteil eines offenen Blockrands zu integrieren, wird ein präzises volumetrisches Gerüst für das Projekt definiert.
Als Grundidee und Instrument für den Entwurf dient die Wahl von Typologien und Wohnformen, mit der diese industrielle Struktur am sinnvollsten bespielt und gleichzeitig weitestmöglich erhalten werden kann.
Für die Aufstockung und Erweiterung der bestehenden Struktur werden die Eigenschaften des Bestands übernommen. Das Alte bleibt in der DNA des Neuen spürbar und die Geschichte des Quartiers wird ablesbar. Im Weiteren eröffnet das industrielle Stützenraster die Möglichkeit, das Projekt modular zu denken und flexibel auf alternative Wohntypologien anzupassen.

Um die kleinen Wohnflächen pro Person sinnvoll in die bestehende Struktur zu integrieren, wurden spezifische typologische Lösungen entwickelt. Durch die einfache Grundkonzeption der Erschliessung – zwei grosszügige, über Innen- und Aussengänge miteinander verbundene Treppenhäuser – wird das Gebäude für die Bewohner als ein Haus ablesbar.
Besonders der Umgang mit der Gebäudetiefe von 18m mit Nord-Süd Ausrichtung stellt eine grosse Herausforderung dar. Mit der gewählten Positionierung der Treppenhäuser ist es nun möglich, klassische Eckwohnungen an die Gebäudestirnseiten zu setzen und die tiefen Wohnungen auf acht Rasterachsen im mittleren Segment zu begrenzen.

Zurück zur Übersicht