Bachelard Wagner Architekten Bachelard Wagner Architekten Bachelard Wagner Architekten
  • Projects
    • Selection
    • Status
    • Program
    • Year
    • Commission
  • Office
    • Contact
    • Team
    • Forum
  • Deutsch
  • English
Figure-ground diagram Lysbüchel Basel
Ground floor
1st floor
1nd floor
3rd floor
4th floor
5th floor
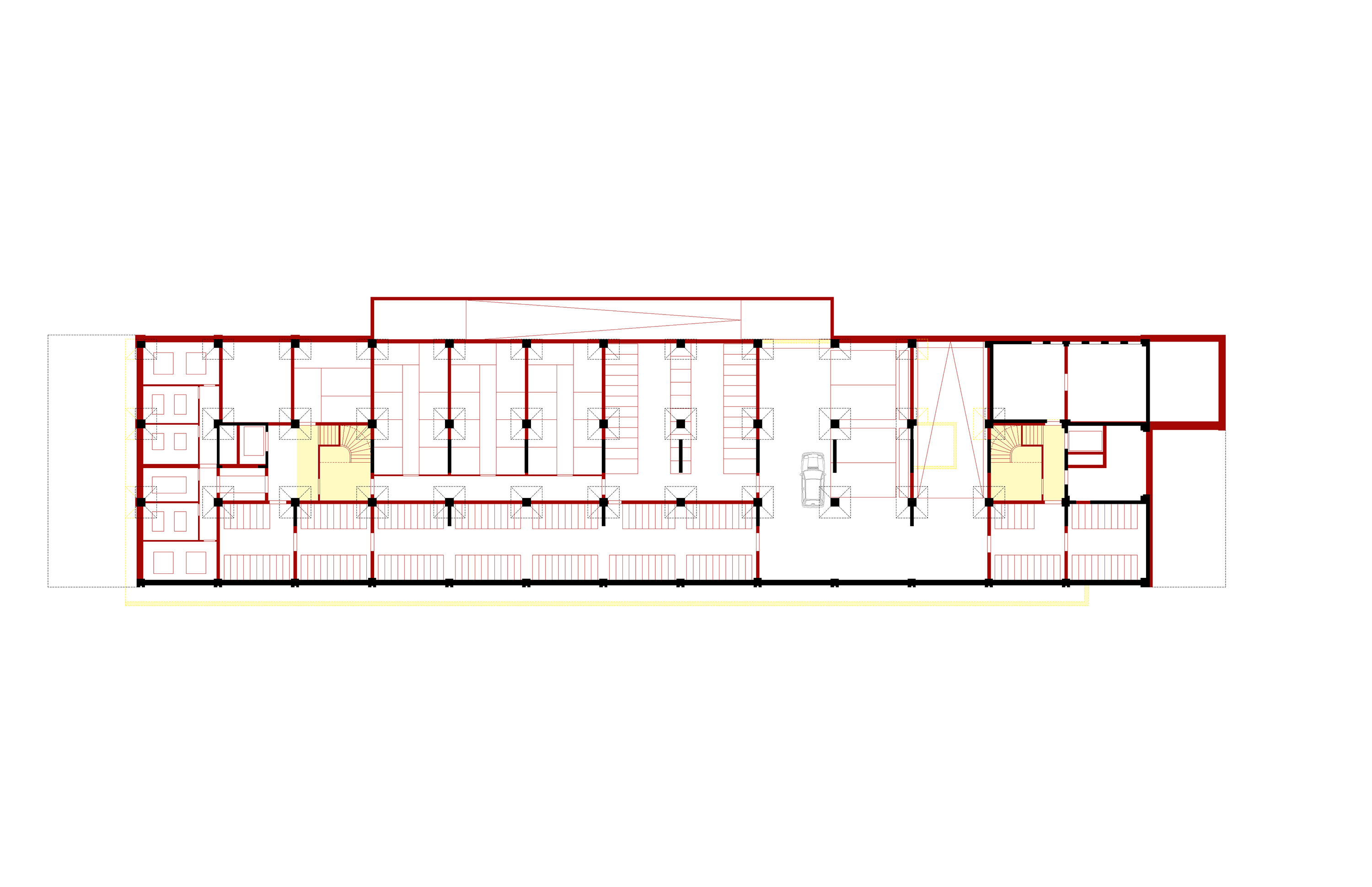
Basement
Section
Section
Facade
Facade
Facade
Figure-ground diagram Lysbüchel Basel
Ground floor
1st floor
1nd floor
3rd floor
4th floor
5th floor
Basement
Section
Section
Facade
Facade
Facade
1/

Conversion of Warehouse Building into Residential Building Lysbüchel Basel

Data

Jahr: 2018
Auftragstyp: Study / 2nd Place
Status: Not realized
Programm: Residential, Service

Brief: Conversion of Warehouse Building into residential building
Number of apartments: 53
Number of ateliers: 7
GFA Total: 7’957.6 m²

Client: Stiftung Habitat
Architecture: Bachelard Wagner Architekten, Basel
Team: Anouk André

Back to List