Bachelard Wagner Architekten Bachelard Wagner Architekten Bachelard Wagner Architekten
  • Projekte
    • Auswahl
    • Status
    • Programm
    • Jahr
    • Auftragstyp
  • Büro
    • Kontakt
    • Team
    • Forum
  • Deutsch
  • English
Schwarzplan Bern
Modell Situation
Visualisierung der Erweiterung
Detail Fassade / Materialisierung
Gebäudeschnitte
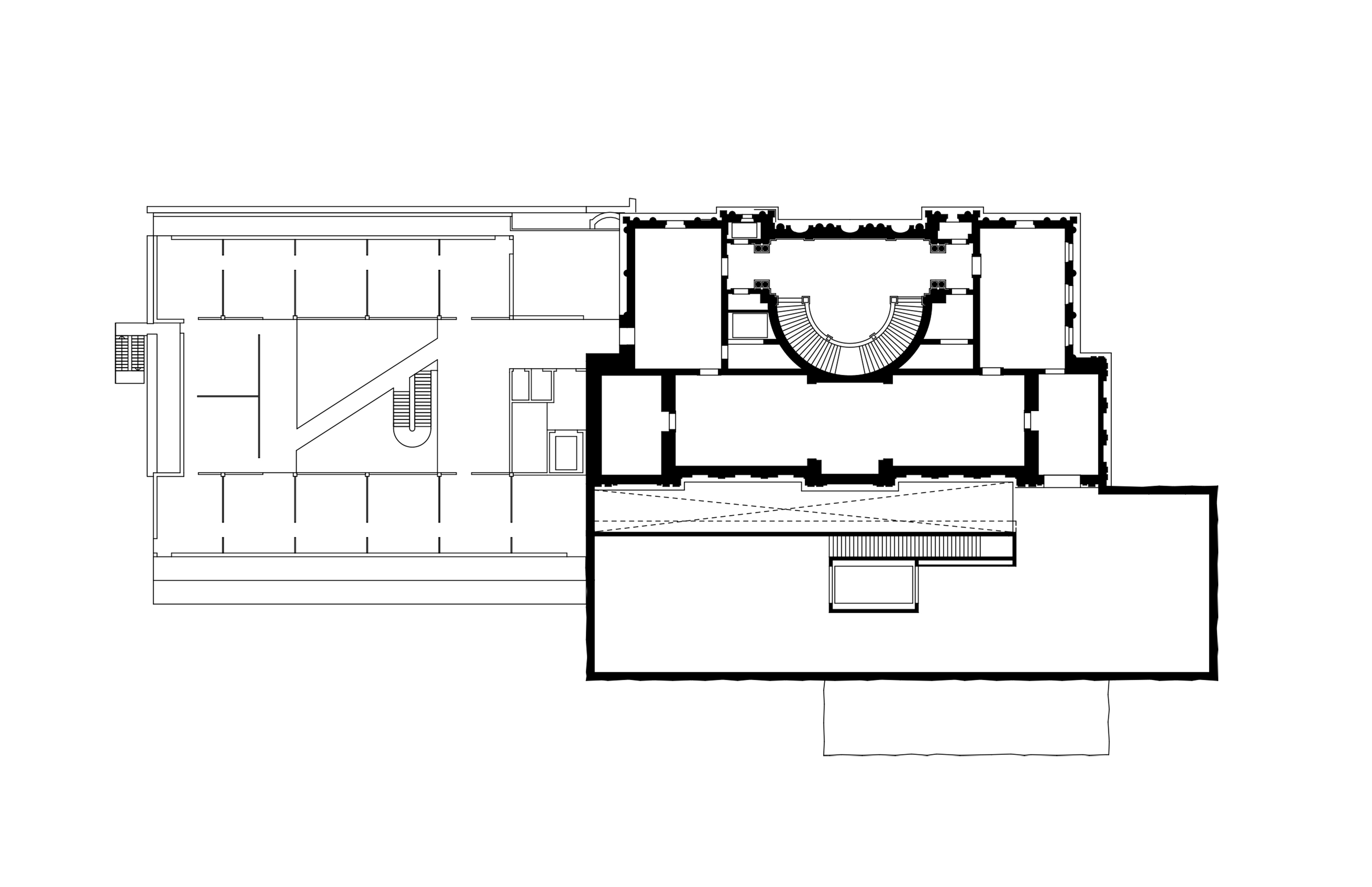
Erdgeschoss
Obergeschoss
Schwarzplan Bern
Modell Situation
Visualisierung der Erweiterung
Detail Fassade / Materialisierung
Gebäudeschnitte
Erdgeschoss
Obergeschoss
1/

Erweiterung Kunstmuseum Bern

Bern, Schweiz

Data
Text

Jahr: 2006
Auftragstyp: Zweistufiger Wettbewerb / 1. Preis
Status: Nicht realisiert
Programm: Kultur, Museum

Aufgabe: Erweiterung des Kunstmuseums Bern.

Bauherrschaft: Stiftung Kunstmuseum Bern
Architektur: Bachelard Wagner Architekten, Basel
Mitarbeit: Fahny Pesenti
Tragwerksplanung: Büro Thomas Boyle+Partner AG, Zürich
Haustechnik: Waldhauser Haustechnik AG, Basel
Visualisierung: Cédric Bachelard

Der klassizistische Stettler-Bau in Bern sollte mit einem neuen Baukörper und rund 1500 m² Ausstellungsfläche für die Gegenwartskunst ergänzt werden.

Der hier sehr kompakt geplante Neubau und die optimierten Erschliessungselemente schaffen trotz knapper Platzverhältnisse Raum für grosszügige Ausstellungshallen. Im Ganzen neu konzipiert, steht die bislang der Aare zugewandte Fassade des Stettler-Baus neu im Dialog mit den ausgestellten Kunstwerken. Folglich steht auch der Hodlersaal, der ehemalige Hauptsaal, nicht mehr in Beziehung zum Aussenkontext, sondern zu jeweils wechselnden Exponaten. Alle drei Ausstellungsgeschosse sind auf gleicher Höhe mit dem Altbau verbunden, so ist es möglich, sowohl gebäudeübergreifende, als auch voneinander unabhängige Ausstellungen zu konzipieren. Entsprechend den Bedürfnissen jedes Ausstellungskonzeptes können die Räume mit Schiebewänden bis hin zur vollständigen Trennung der Gebäudeteile verändert werden.

Die bewusste Gegenüberstellung der klassischen Fassadenelemente des Bestandes mit den kubischen Fassadenelementen der neuen Ausstellungshallen geben dem Anbauprojekt seinen architektonischen Ausdruck und unterstützen die angestrebte Wechselwirkung zwischen Alt- und Neubau. Pyramidale Formen in unterschiedlichen Kombinationen ergeben ein Muster von inversen Steinquadern, die analog zum Rhythmus der Ecksteine und Gesimse des Altbaus geschichtet sind.

Leider erwies sich das gewonnene Projekt mit den Vorgaben des Denkmalschutzes als nicht vereinbar.
Bis heute ist noch kein neues räumliches Szenario für den Bereich der Gegenwartskunst gefunden worden.

Zurück zur Übersicht