Bachelard Wagner Architekten Bachelard Wagner Architekten Bachelard Wagner Architekten
  • Projects
    • Selection
    • Status
    • Program
    • Year
    • Commission
  • Office
    • Contact
    • Team
    • Forum
  • Deutsch
  • English
Figure-ground diagram Bern
Site model
Visualization
Detail facade
Sections
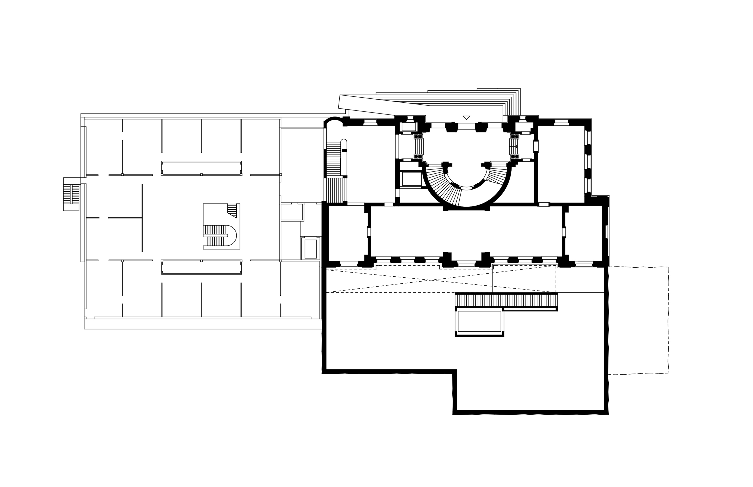
Ground floor
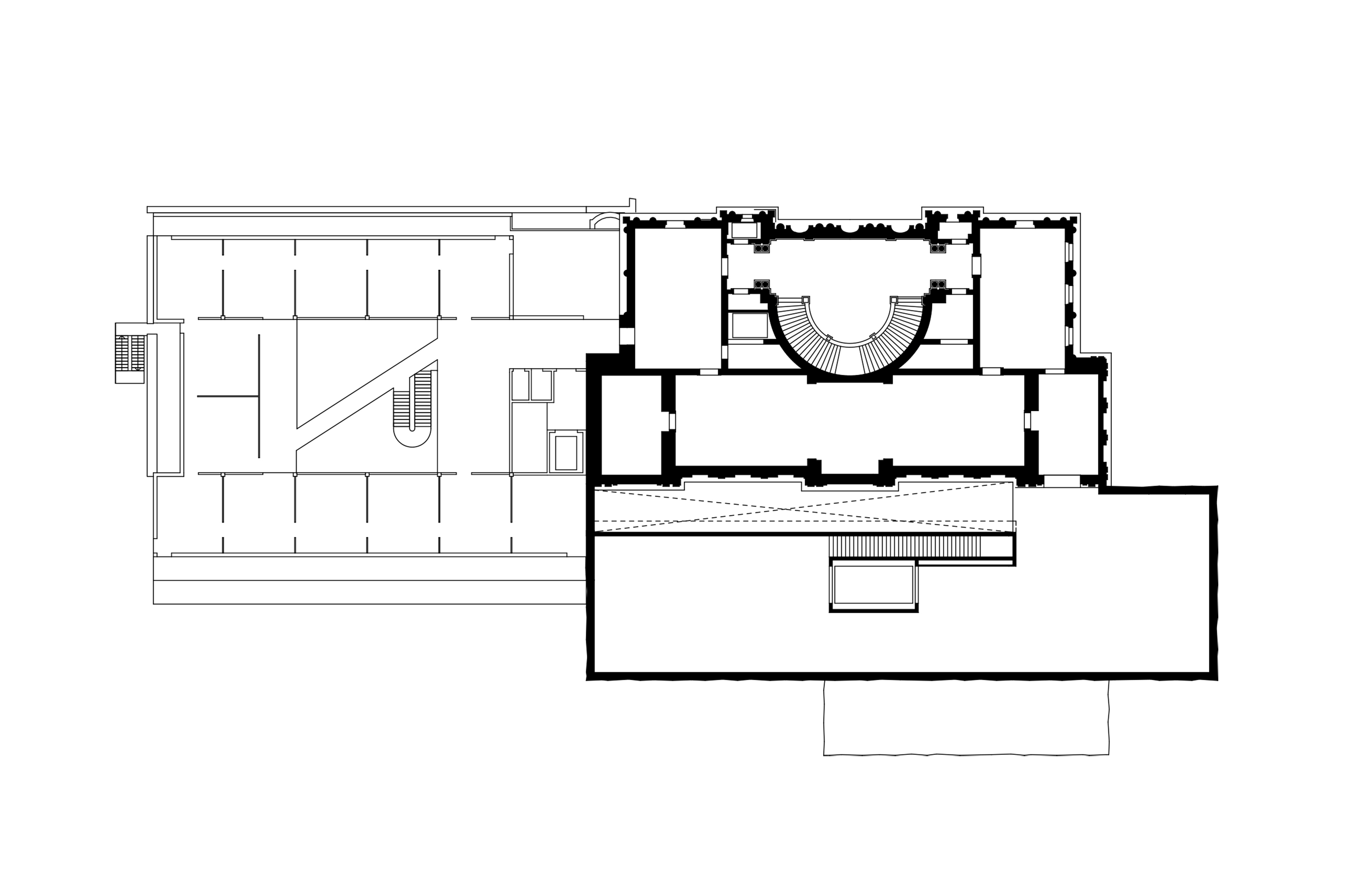
Upper floor
Figure-ground diagram Bern
Site model
Visualization
Detail facade
Sections
Ground floor
Upper floor
1/

Expansion Kunstmuseum Bern

Bern, Switzerland

Data

Year: 2006
Commission: Two-Stage competition / 1st Prize
Status: Not realized
Program: Culture, Museum

Brief: Expansion of Kunstmuseum Bern.

Client: Stiftung Kunstmuseum Bern
Architecture: Bachelard Wagner Architects, Basel
Team: Fahny Pesenti
Structural engineering: Büro Thomas Boyle+Partner AG, Zurich
Domestic engineering: Waldhauser Haustechnik AG, Basel
Visualization: Cédric Bachelard

Back to List