Bachelard Wagner Architekten Bachelard Wagner Architekten Bachelard Wagner Architekten
  • Projekte
    • Auswahl
    • Status
    • Programm
    • Jahr
    • Auftragstyp
  • Büro
    • Kontakt
    • Team
    • Forum
  • Deutsch
  • English
Schwarzplan Winterthur
Visualisierung I
Visualisierung II
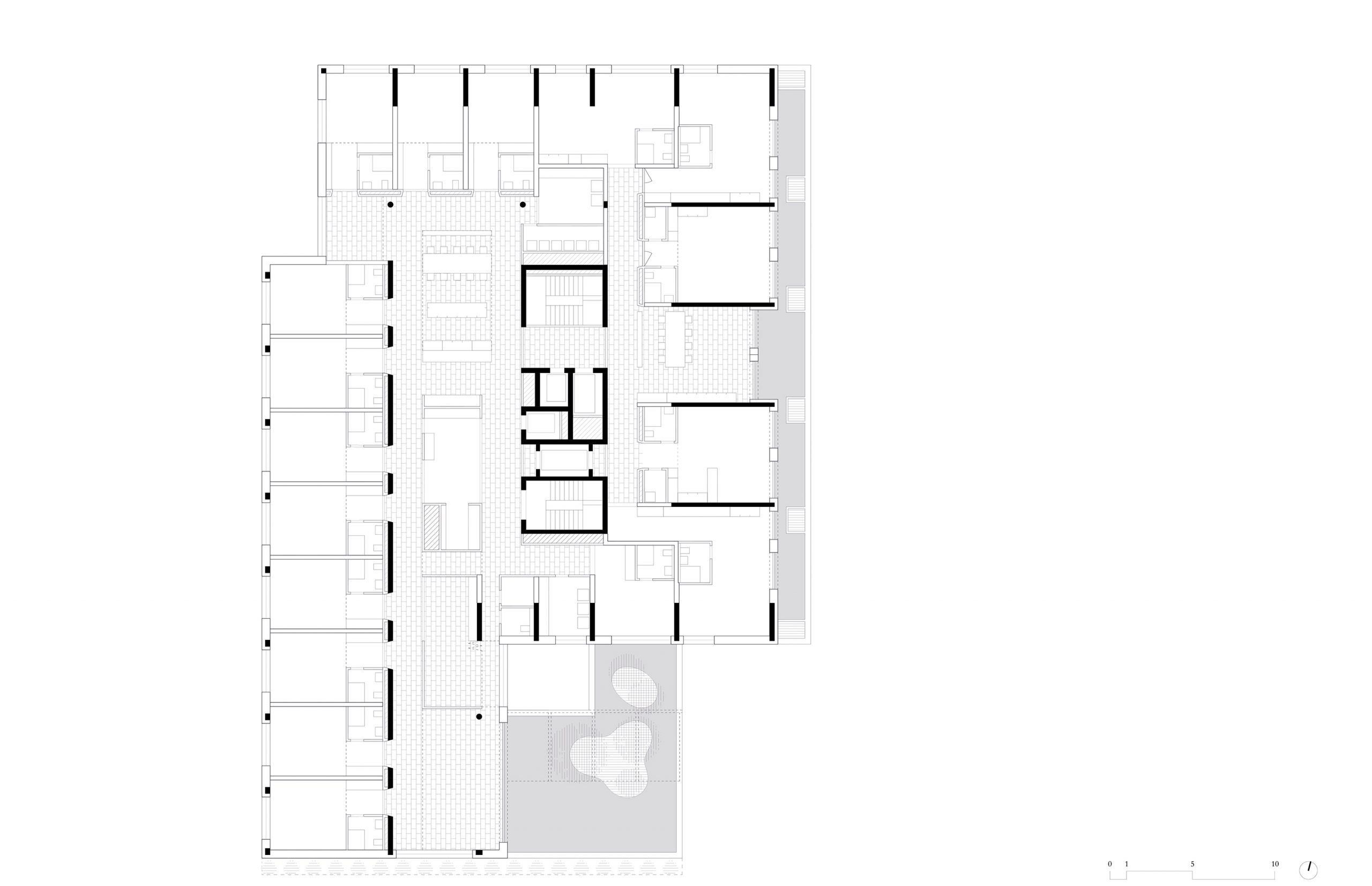
Erdgeschoss
3. Obergeschoss - Pflege und Cluster
5. / 7. Obergeschoss - Pflegestudios
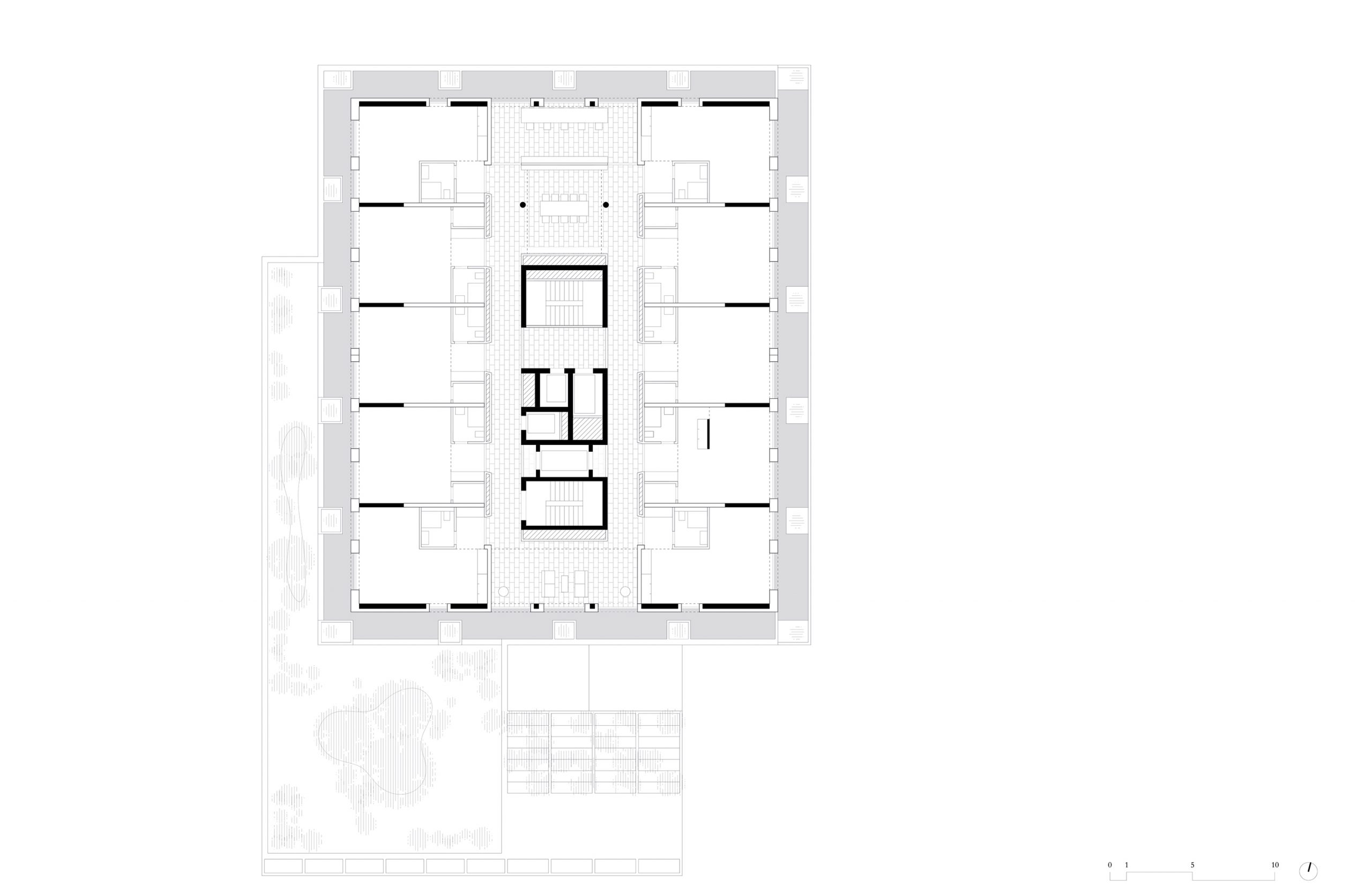
8. / 9. Obergeschoss - Wohnungen
11. bis 16. Obergeschoss - Wohnungen
Schnitt
Schwarzplan Winterthur
Visualisierung I
Visualisierung II
Erdgeschoss
3. Obergeschoss - Pflege und Cluster
5. / 7. Obergeschoss - Pflegestudios
8. / 9. Obergeschoss - Wohnungen
11. bis 16. Obergeschoss - Wohnungen
Schnitt
1/

Neubau Hochhaus Sulzerallee Winterthur

Winterthur, Schweiz

Data
Text

Jahr: 2023
Auftragstyp: Studienauftrag (selektives Verfahren)
Status: Nicht realisiert
Programm: Wohnen, Clusterwohnungen, Pflegezentrum, Dienstleistungsflächen, Pocketpark Sulzerallee

Aufgabe: Neubau an der Sulzerallee mit Wohnungen für alle Generationen, einem Pflegezentrum, Dienstleistungsflächen und einem öffentlichen Park.

Planungsperimeter: Gestaltungsplan «Umfeld Grüze»/ Baufeld 4
GF Gesamt: 11‘668 m²
Anzahl Wohnungen: 83
Anzahl Pflegestudios: 29
Anzahl Pflegezimmer: 24
Anzahl Clusterwohnungen: 5

Bauherrschaft: Oase Gruppe, Oase Service AG, Dübendorf
Architektur: Bachelard Wagner Architekten AG SIA BSA, Basel
Mitarbeit: Cédric Bachelard, Anne Marie Wagner, Anouk André, Katerina Krupickova, Hervé Doutaz, Timothy Spielmann

Tragwerksplannung: Schnetzer Puskas Partner, Salomé Hug
Landschaftsarchitektur: Radschallpartner AG, Meilen,
Sibylle Aubort Radschall, Regula Luder
Gebäudetechnik: Waldhauser Hermann, Marco Waldhauser
Fassadenbau: Emmer Pfenninger, Steffi Neubert
Energie: Enerpeak AG, Mathiias Hoehn
Brandschutz: KSI Brandschutz, Dominique Sterk

Die vertikale Schichtung von Nutzungseinheiten – Dienstleistungen, Pflegeeinheiten, betreute Alterswohnungen und Wohnungen – dient als Ausgangslage für die volumetrische Formung des Hochhauses. Vor- und Rücksprünge deuten auf die Nutzungseigenschaften der einzelnen
Geschossgruppen und bedingen punktuelle statische Wechsel. Aus unserer Sicht liegt eine narrative Vertikalität dieser Entwurfsaufgabe zugrunde. Die programmatische Nutzungsmenge, sowie die Höhenbeschränkung auf sechzig Meter definieren ein relativ massives und hohes Volumen mit wenig «Schlankheitspotential». Die narrative Vertikalität nehmen wir als Anlass dem entgegenzuwirken und das Gefühl eines hohen Hauses, durch die progressive Staffelung von horizontalen Gebäudeteilen, zu vermitteln. Die Lesbarkeit der einzelnen Nutzergruppen im Gebäudeerscheinungsbild hat positive Auswirkung auf die Identifikation der Bewohner mit dem Haus. Fern betrachtet wird das Hochhaus in kleine Einheiten gegliedert, verwandt mit dem Charakter der umliegenden industriellen Landschaft.
Das Hochhaus steht mit dem Haupteingang auf der Baulinie der Sulzerallee. Ein fünfgeschossiger Gebäudeflügel spring vor auf die Baulinie und dehnt sich entlang der Talackerstrasse bis zur südlichen Grundstückgrenze. Er bietet sowohl einen flexiblen Gebäudebereich ausserhalb des Hochhaus-Footprint wie auch den Ansatz einer urbanen Gebäudefront entlang der Talackerstrasse. Seitens Pocket-Park steht die Hochhausflucht zurückversetzt zum benachbarten Dienstleistungsgebäude. Somit gewährt die Öffnung zwischen den zwei Baukörpern auf der Südseite des Pocket-Parks eine gute Besonnung des Aussenraums.

Zurück zur Übersicht