Bachelard Wagner Architekten Bachelard Wagner Architekten Bachelard Wagner Architekten
  • Projekte
    • Auswahl
    • Status
    • Programm
    • Jahr
    • Auftragstyp
  • Büro
    • Kontakt
    • Team
    • Forum
  • Deutsch
  • English
Schwarzplan Zürich
Visualisierung Fassade zu den Gleisen
Visualisierung Fassade zum Quartier
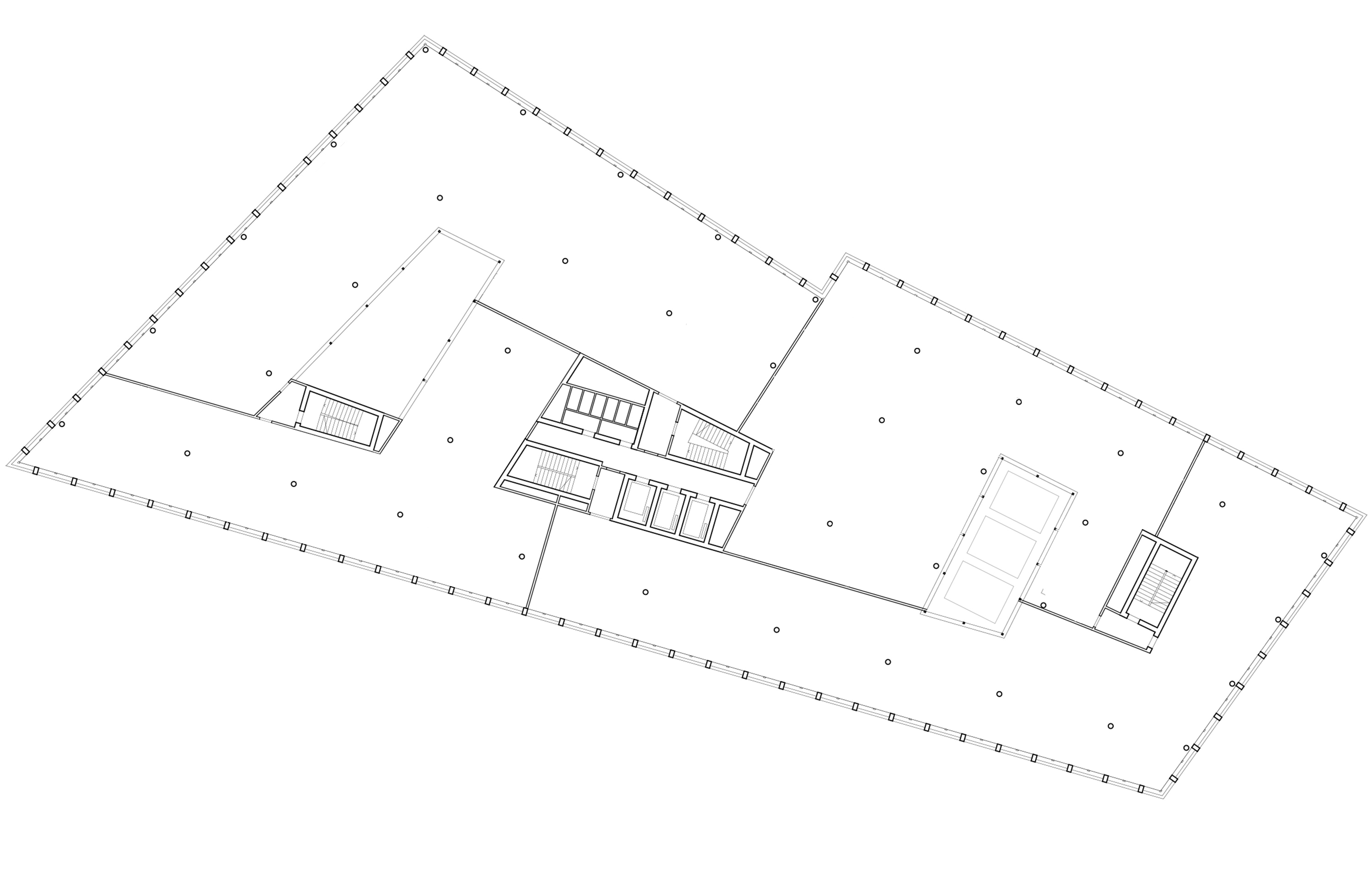
Regelgeschoss
Detail Fassade
Schwarzplan Zürich
Visualisierung Fassade zu den Gleisen
Visualisierung Fassade zum Quartier
Regelgeschoss
Detail Fassade
1/

Europaallee Baufeld D Zürich

Zürich, Schweiz

Data
Text

Jahr: 2013
Auftragstyp: Zweistufiger Wettbewerb (selektives Verfahren)
Status: Nicht realisiert
Programm: Dienstleistung, Gastronomie

Aufgabe: Neubau eines Dienstleistungsgebäudes am Gleisfeld.
Planungsperimeter: ca. 3’400 m²
GF: 25’332 m²

Bauherrschaft: Schweizerische Bundesbahnen SBB
Architektur: Bachelard Wagner Architekten, Basel
Mitarbeit: Patrick Ayer, Bartlomiej Cybula
Tragwerksplanung: ZPF Ingenieure AG, Basel
Haustechnik: Kurt Weiss GmbH, Schlieren
Fassadenplanung: Emmer Pfenninger Partner AG, Münchenstein 

Visualisierung: Sven Schröter, Hannover

Mit dem Projekt Europaallee wollen die Schweizerischen Bundesbahnen SBB als Grundeigentümerin in Zusammenarbeit mit der Stadt Zürich das Areal zwischen dem Hauptbahnhof Zürich und der Langstrasse neuen Nutzungen mit hoher städtebaulicher Qualität zugänglich machen. Bis 2020 soll schrittweise ein neuer, urbaner Stadtteil mit einem ausgewogenen Nutzungsmix sowie begrünten Strassen und Plätzen entstehen. Das letzte zu entwickelnde Baufeld D liegt zwischen den schon projektierten Baufeldern B und F am nördlichen Rand des Areals Europaallee, direkt am Gleisfeld des Hauptbahnhofs Zürich. Es bestand der Wunsch nach einem architektonisch hochwertigen und energetisch herausragenden Gebäude mit flexibel nutzbaren Flächen für Dienstleistungsnutzungen sowie vollflächig bespielbaren, öffentlichen Detailhandelsnutzungen.

Das projektierte Gebäudevolumen fügt sich städtebaulich in das Gesamtbild der Europaallee ein und entwickelt über die Fassadengestaltung seinen spezifischen Charakter. Das Baufeld, das sich im Masterplan aus dem gegenwärtigen Umgang mit Städtebau ergibt, nämlich die Stadtgeschichte in die Parzellierung einfliessen zu lassen, zeichnet in seiner Geometrie die Gleisfelder nach. Die Überlagerung von dieser charakteristischen, spitzwinkligen Geometrie des Baufeldes und der strengen Rasterung der Gebäudestruktur ergibt in diesem Entwurf eine subtile Verschiebung des vertrauten Bildes von einem ortstypischen Bürogebäude der Nachkriegszeit und verleiht ihm dadurch einen zeitgenössischen Ausdruck. Die Höhenentwicklung des Volumens nimmt bewusst keine der umliegenden Traufhöhen auf, sondern ergibt sich einerseits aus der Nutzung und anderseits aus dem Dialog mit dem unmittelbaren Kontext.

Die innere Organisation des Betonskellettbaus ermöglicht eine grosse Flexibilität im Grundriss. Die Positionierung der Erschliessungskerne erlaubt den Verzicht auf Korridore in den oberen Geschossen und je nach Arbeitskultur die freie Wahl zwischen Kombi-Grossraumbüros bis hin zu Zellenbüros. Um normiertes Mobiliar und Trennwandsysteme verwenden zu können, ist die Geometrie des Innenausbaus rechtwinklig zu den jeweiligen Fassaden angedacht. Zwei Lichthöfe durchdringen den Baukörper und führen über Oberlichter natürliches Licht bis in das Erdgeschoss. Sie sind von aussen nicht wahrnehmbar und dienen allein der inneren Organisation des Grundrisses.

Zurück zur Übersicht