Bachelard Wagner Architekten Bachelard Wagner Architekten Bachelard Wagner Architekten
  • Projects
    • Selection
    • Status
    • Program
    • Year
    • Commission
  • Office
    • Contact
    • Team
    • Forum
  • Deutsch
  • English
Facade facing the yard
Figure-ground diagram Brünnen
Site model
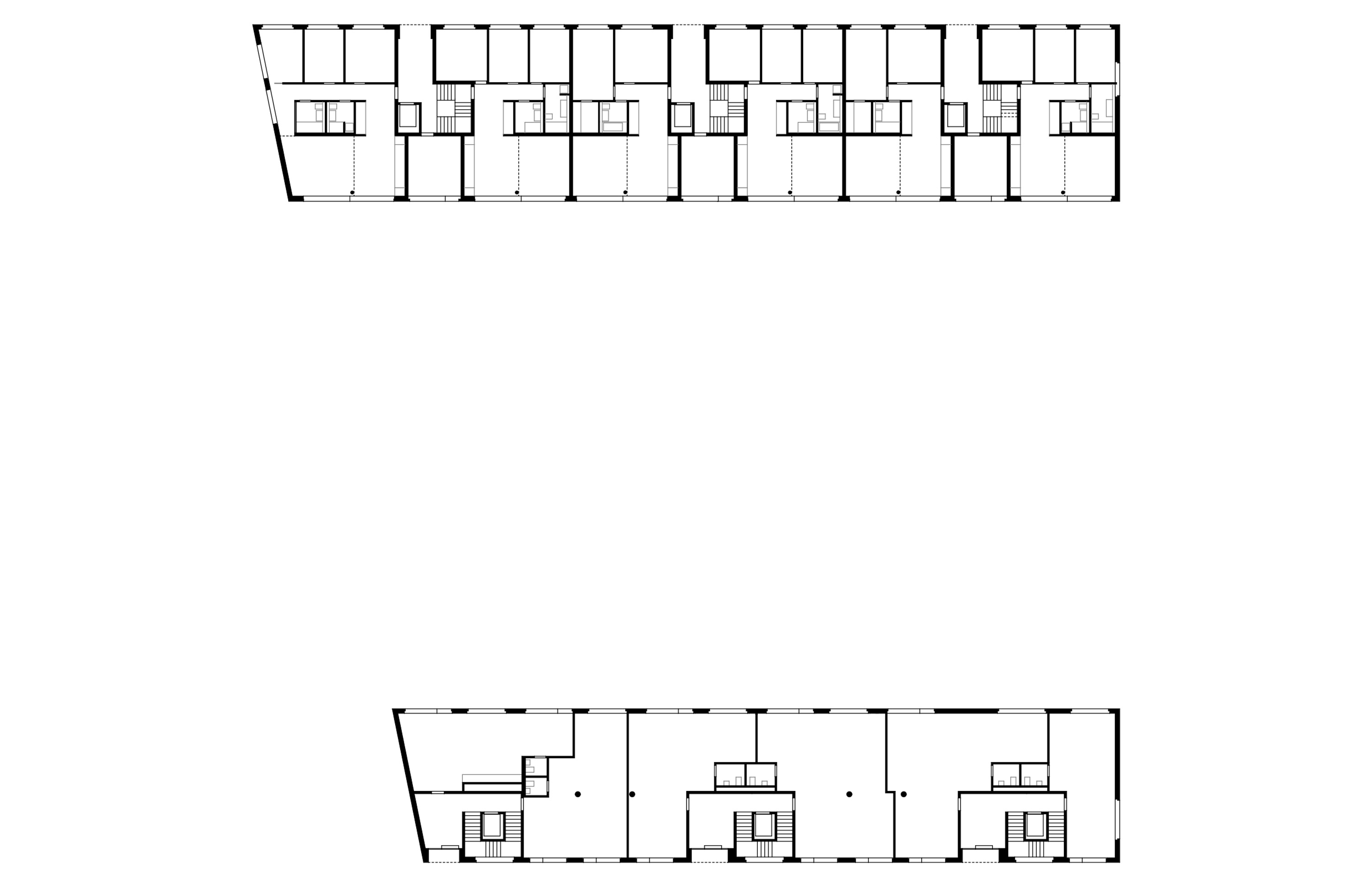
Ground floor
1st floor
2nd floor
3rd floor
4th floor
Elevation and section of House East
Apartment House East
Apartment House East
Facade facing the yard
Figure-ground diagram Brünnen
Site model
Ground floor
1st floor
2nd floor
3rd floor
4th floor
Elevation and section of House East
Apartment House East
Apartment House East
1/

Brünnen Baufeld 10 Bern

Bern-Brünnen, Switzerland

Data

Year: 2006
Commission: Open competition / 1st Prize
Status: Complete 2010
Program: Residential

Brief: Housing development and urban densification.
Project Area: ca. 5000 m²
Number of apartments: 47

Client: Burkhalter Architekten AG
Architecture: Bachelard Wagner Architects, Basel
Team: Julia Brandenburg, Massimiliano Emanuele, Roberto Ratto Balli
Structural engineering: Büro Thomas Boyle+Partner AG, Zurich
Photos: Bachelard Wagner Architects

Back to List