Bachelard Wagner Architekten Bachelard Wagner Architekten Bachelard Wagner Architekten
  • Projects
    • Selection
    • Status
    • Program
    • Year
    • Commission
  • Office
    • Contact
    • Team
    • Forum
  • Deutsch
  • English
Visualization extension
Figure-ground diagram Münchenstein
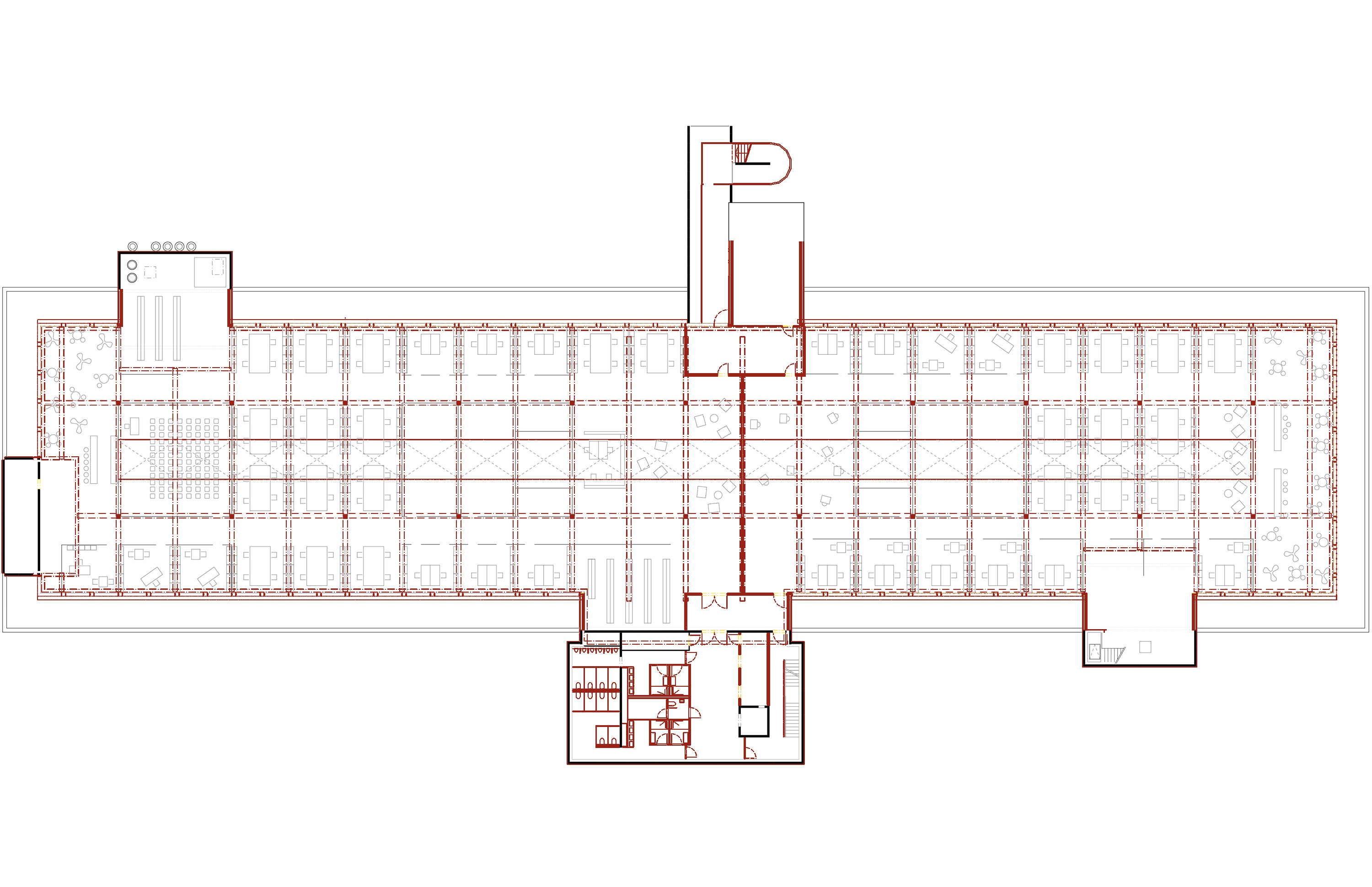
Ground plan
Section
Model
Detail facade element
Visualization extension
Figure-ground diagram Münchenstein
Ground plan
Section
Model
Detail facade element
1/

Extension of Spenglerpark Münchenstein

Münchenstein, Switzerland

Data

Year: 2013
Commission: Direct commission
Status: Not realized
Program: Service

Brief: Addition of a roof top floor to an industrial building.
Area: 3’000 m²

Client: Crédit Suisse AG
Architecture: Bachelard Wagner Architects, Basel
Team: Katja Müller, Jennifer Gend, Christoph Grube, Hervé Doutaz
General planning: Emch+Berger Gesamtplanung Hochbau, Basel
Structural engineering: Schmidt+Partner AG, Basel
Domestic engineering: Aicher, De Martin, Zweng AG, Lucerne

Back to List