Bachelard Wagner Architekten Bachelard Wagner Architekten Bachelard Wagner Architekten
  • Projects
    • Selection
    • Status
    • Program
    • Year
    • Commission
  • Office
    • Contact
    • Team
    • Forum
  • Deutsch
  • English
Figure-ground diagram Basel
Site plan
Facade facing the street
Sections
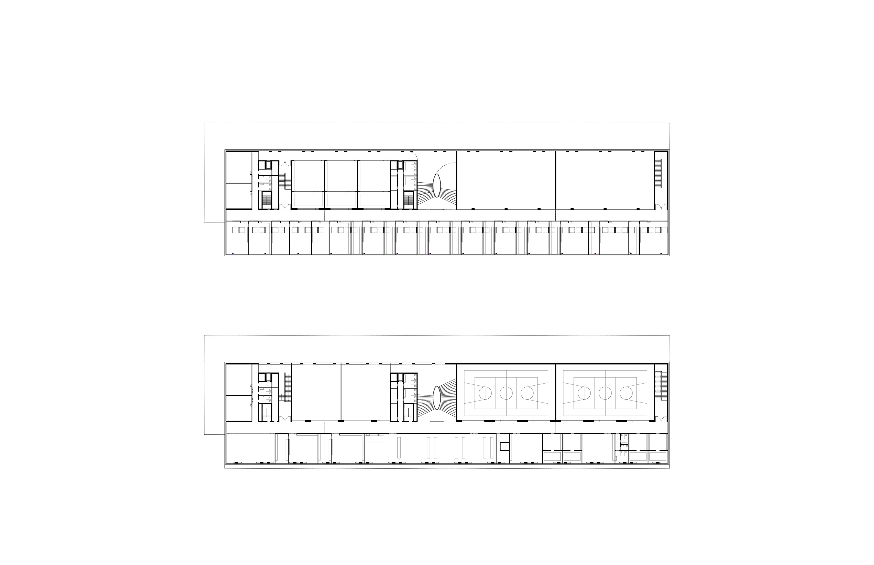
Floor plans
Floor plans
View into the sports hall
Visualization class room
Figure-ground diagram Basel
Site plan
Facade facing the street
Sections
Floor plans
Floor plans
View into the sports hall
Visualization class room
1/

Sandgruben School Basel

Basel, Switzerland

Data

Year: 2012
Commission: Competition
Status: Not realized
Program: Education, School

Brief: New school building in an urban context.

Client: Canton Basel-City
Architecture: Bachelard Wagner Architects, Basel
Team: Matthias Willems, Manoel Prinz
Landscape architecture: Berchtold.Lenzin Landschaftsarchitekten, Basel
Structural engineering: ZPF Ingenieure AG, Basel
Domestic engineering: Kurt Weiss GmbH, Schlieren
Visualization: Sven Schröter, Hannover

Back to List