Bachelard Wagner Architekten Bachelard Wagner Architekten Bachelard Wagner Architekten
  • Projects
    • Selection
    • Status
    • Program
    • Year
    • Commission
  • Office
    • Contact
    • Team
    • Forum
  • Deutsch
  • English
1/

Rennwegdreieck Freiburg

Freiburg, Germany

Data
Text

Year: 2015
Commission: Competition / 1st Prize
Status: Completed 2021
Program: Residential, Service

Brief: Apartment building at a traffic junction.
Project area: 1’206 m²
Number of apartments: 49

Client: Freiburger Stadtbau GmbH
Architecture: Bachelard Wagner Architects, Basel
Team: Katja Müller, Ines Müller, Kathrin Jungo, Hervé Doutaz, Dominik Golaszewski, Michael Kindle, Anouk André, Lucas Becker, Manuel Kost
Building physics: GK Bauphysik, Freiburg i. Br.
Photo: Maris Mezulis, Basel / Sándor Hegedűs, Freiburg

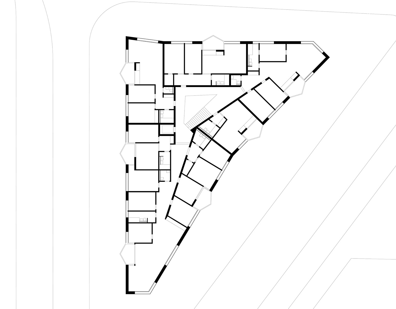
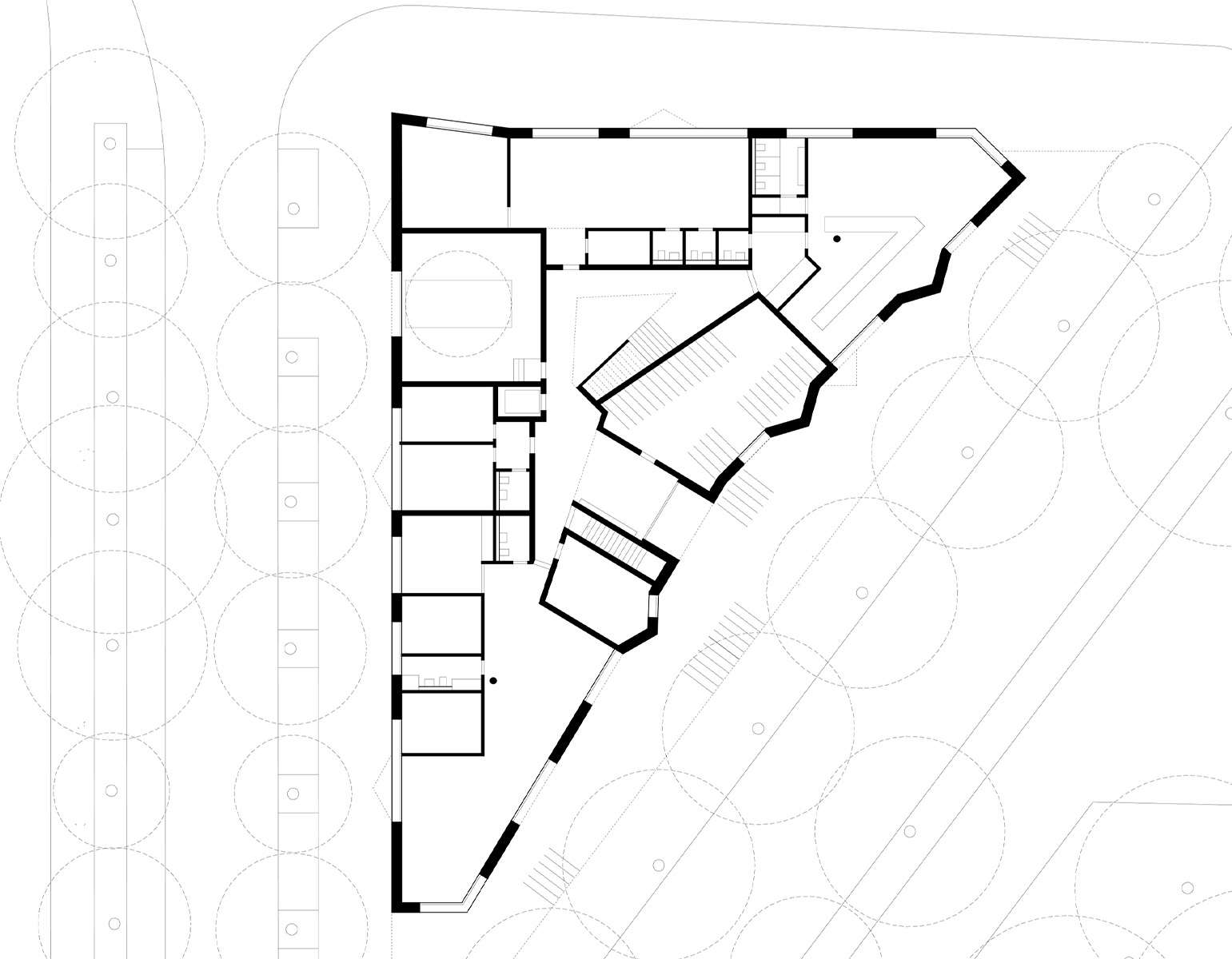
In Freiburg im Breisgau, in the district of Herdern, a residential building with 49 apartments and commercial space is to be built. The site is surrounded by three heavily trafficked roads. The primary goal was to transform this special traffic junction into a livable urban district.

The new building is not a clear solitary structure, as it aligns with the existing lines and heights of the neighboring buildings. Anchored both vertically and horizontally, it is able to assert itself against the traffic flows. In addition, the tree-lined avenues are strongly integrated into the project, and the existing tree population is largely preserved.

The triangular building with a central staircase becomes a faceted volume through bends, bay windows, and cut-off corners. The deformation of the triangle mainly serves to optimize the organization of the floor plan. The apartments are arranged in layers around the stair core in the layout – a first layer with entrances, storage rooms, wet areas, and shafts, and a second layer with living and sleeping spaces.

Recessed loggias break the frontality of the apartments facing the street. This opens up lateral visual connections for the adjoining living and bedrooms. Additionally, the living area is structured in such a way that a dining space is created at some distance from the noisy urban environment. The simple glazing and sound-absorbing materials on the inner sides of the loggias make it possible to let in outside air and softened city sounds into all adjacent rooms.

The strong presence of the color-shifting brick supports the intention of firmly anchoring the house to the ground. Solid parapets provide good primary noise protection and shielded furnishing options. Wide, lintel-free openings ensure visual connections to the urban surroundings and maximize natural lighting.

Back to List