Bachelard Wagner Architekten Bachelard Wagner Architekten Bachelard Wagner Architekten
  • Projects
    • Selection
    • Status
    • Program
    • Year
    • Commission
  • Office
    • Contact
    • Team
    • Forum
  • Deutsch
  • English
Figure-ground diagram Basel
Visualization new building
Model
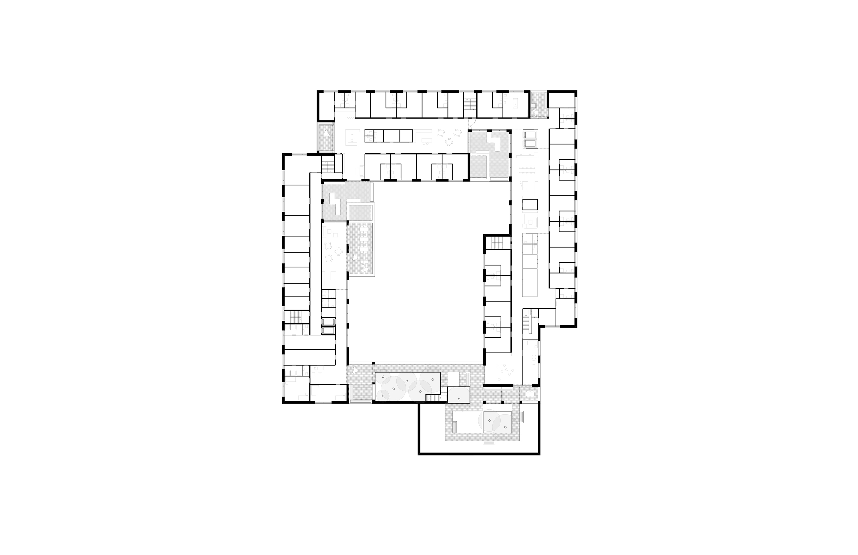
Ground floor
1st floor
2nd floor
3rd floor
Elevation and sections
Figure-ground diagram Basel
Visualization new building
Model
Ground floor
1st floor
2nd floor
3rd floor
Elevation and sections
1/

Retirement and Nursing Home Marthastift Basel

Basel, Switzerland

Data

Year: 2012
Commission: Competition / 2nd Prize
Status: Not realized
Program: Care

Brief: Replacement construction including enlargement of the retirement and nursing home with dementia ward.
Project area: 8’470 m²

Client: Canton Basel-City
Architecture: Bachelard Wagner Architects, Basel
Team: Julia Brandenburg, Jennifer Gend, Tilman Glatz
Landscape architecture: Berchtold.Lenzin Landschaftsarchitekten, Zurich
Structural engineering: Schnetzer Puskas Ingenieure AG, Basel
Fire protection: Visiotec AG, Allschwil
Visualization: Sven Schröter, Hannover

Back to List