Bachelard Wagner Architekten Bachelard Wagner Architekten Bachelard Wagner Architekten
  • Projects
    • Selection
    • Status
    • Program
    • Year
    • Commission
  • Office
    • Contact
    • Team
    • Forum
  • Deutsch
  • English
general overview of the ZePra area
project Ostdeck
existing building
demolition
Re-Use shell
boundary of the neighbourhood plan
project with neighborhood plan
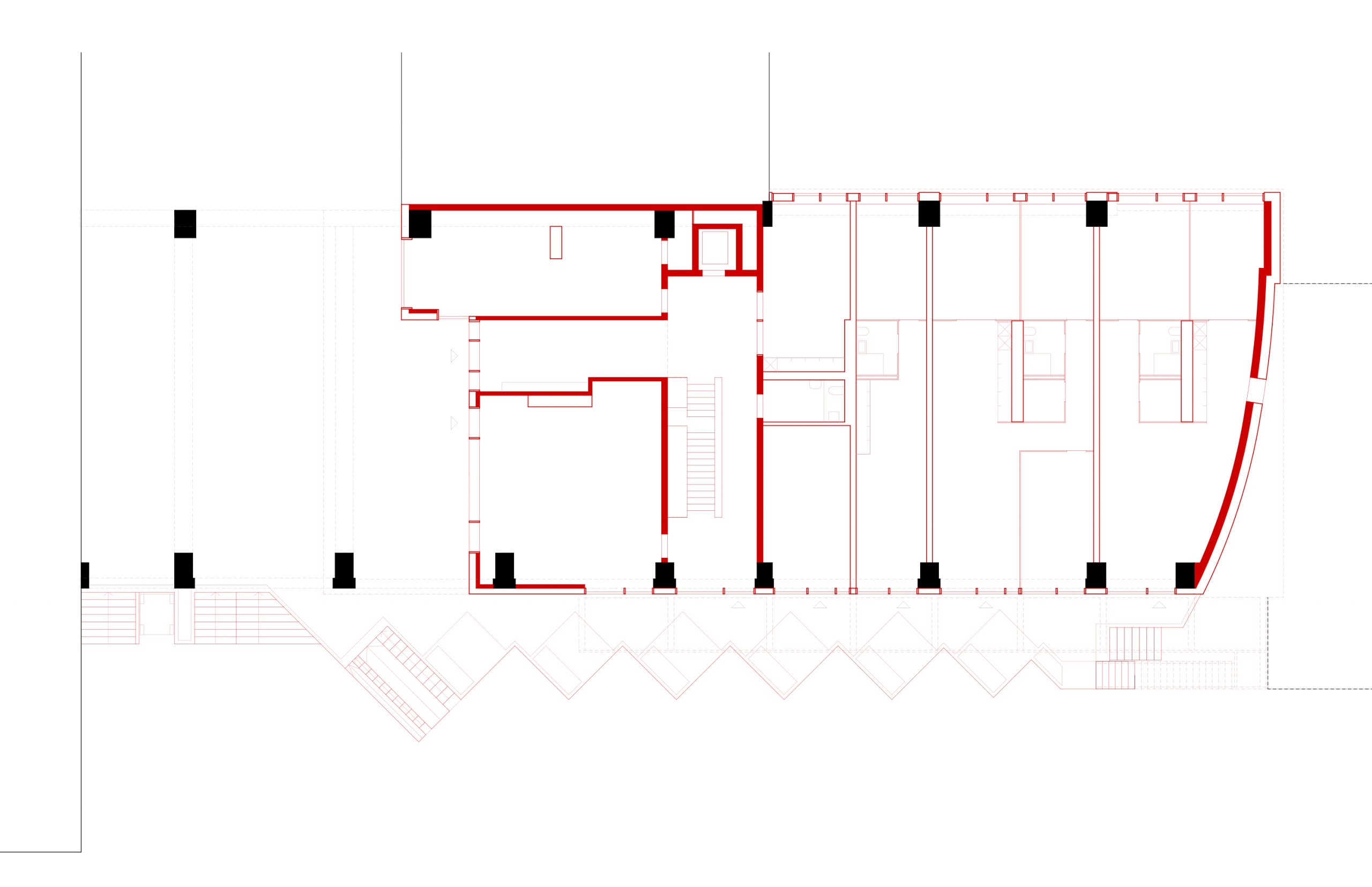
ground floor Ostdeck
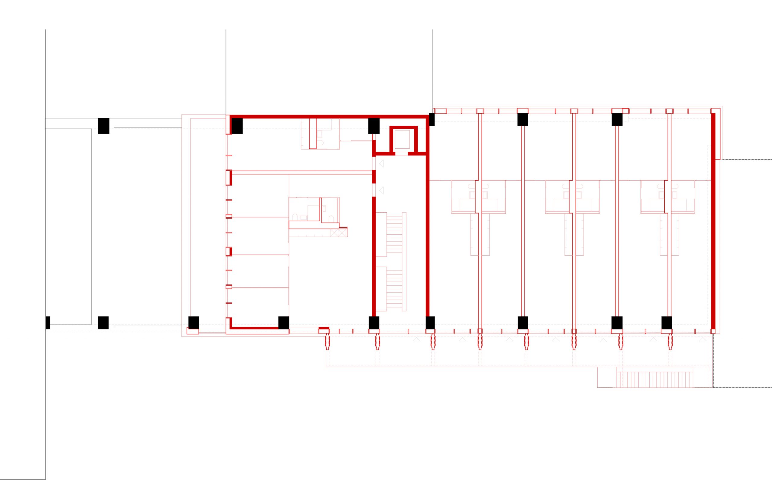
1st floor Ostdeck
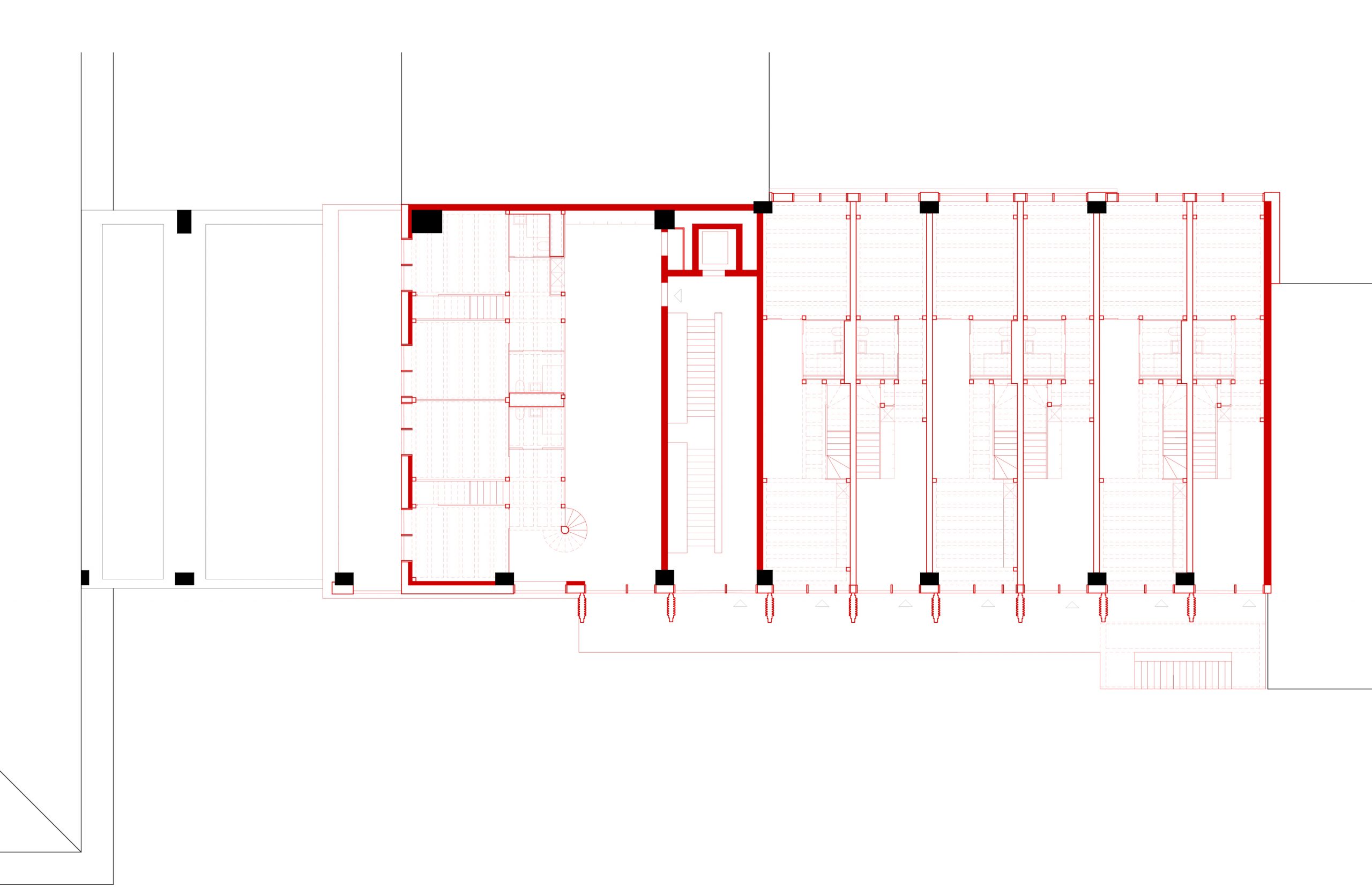
2nd floor Ostdeck
3rd floor Ostdeck
4th floor Ostdeck
5th floor Ostdeck
6th floor Ostdeck
7th floor Ostdeck
8th floor Ostdeck
longitudinal section 1
cross section E
cross section F
4 room maisonnette apartment
4 room maisonnette apartment
3 room maisonnette apartment
3 room maisonnette apartment
3 room maisonnette apartment
4 room maisonnette apartment
general overview of the ZePra area
project Ostdeck
existing building
demolition
Re-Use shell
boundary of the neighbourhood plan
project with neighborhood plan
ground floor Ostdeck
1st floor Ostdeck
2nd floor Ostdeck
3rd floor Ostdeck
4th floor Ostdeck
5th floor Ostdeck
6th floor Ostdeck
7th floor Ostdeck
8th floor Ostdeck
longitudinal section 1
cross section E
cross section F
4 room maisonnette apartment
4 room maisonnette apartment
3 room maisonnette apartment
3 room maisonnette apartment
3 room maisonnette apartment
4 room maisonnette apartment
1/

Ostdeck Pratteln

Pratteln, Schweiz

Data
Text

Year: 2020
Commission: Study Zentrale Pratteln 2018 (invited) / 1. Prize
Status: Ongoing
Program: Residential

Brief: Conversion of an existing warehouse into a residential building.
Project area: 980 m²
BGF: 4’487 m²
Number of apartments: 35

Client: Miethäusersyndikat, Basel
Architecture: Bachelard Wagner Architects, Basel
Team: Dominik Golaszewski, Elias Luzi, Kim Hediger, Timothy Spielmann
Photos: Bachelard Wagner Architekten

The building block Ostdeck is located in the east of the block edge of the new Pratteln headquarters (former Coop distribution centre) opposite the silo building, at the interface with the commercial block in the south. The project arose from the desire of the Miethäusersyndikat cooperative to preserve the shell of the existing Building 22 as far as possible and to convert it for residential use within the framework of the valid neighbourhood plan.

The as-is analysis of the structure leads to the fact that existing beams and columns as well as structurally conditioned ceiling strips in the Werkgasse project outside the neighbourhood plan perimeter. These must necessarily be retained so that the re-use of the shell structure makes sense. They are planted with climbing plants from plant troughs and form a vertical garden as the end of the alley.

The setback on the 6th floor leaves space for a large community terrace and green roof area. The 8th floor is rebuilt except for the supports, which are cut back to the legally permitted height.
The insulation perimeter is wrapped around the existing structure. The horizontal access to the flats is via a pergola to the east, which is located in the outdoor space. The arcade is accessed via two vertical access points, one inside and the other outside.

The existing beams and columns are insulated in the façade area. Ventilated reused trapezoidal sheets of the existing façade are attached to the existing structure via thermally separated substructure systems. Due to the constant thickness of the superstructure, the protrusion and recession of the existing concrete structure is visible in the façade.

The infill between the existing concrete structure is provided by a wood-metal mullion-transom system. The majority of the new building is a dry construction. The partition walls, except for the statically relevant reinforced concrete walls at the staircase and at the interface to the south building block, are metal stud walls clad with plasterboard.
The interior construction of the maisonette flats is a timber construction. The new ceiling above the 8th floor and the inner staircase including landings are made of reinforced concrete with prefabricated concrete staircases.

Back to List