Bachelard Wagner Architekten Bachelard Wagner Architekten Bachelard Wagner Architekten
  • Projects
    • Selection
    • Status
    • Program
    • Year
    • Commission
  • Office
    • Contact
    • Team
    • Forum
  • Deutsch
  • English
Figure-ground diagram Crissier
Visualization apartment with split-level
Visualization apartment
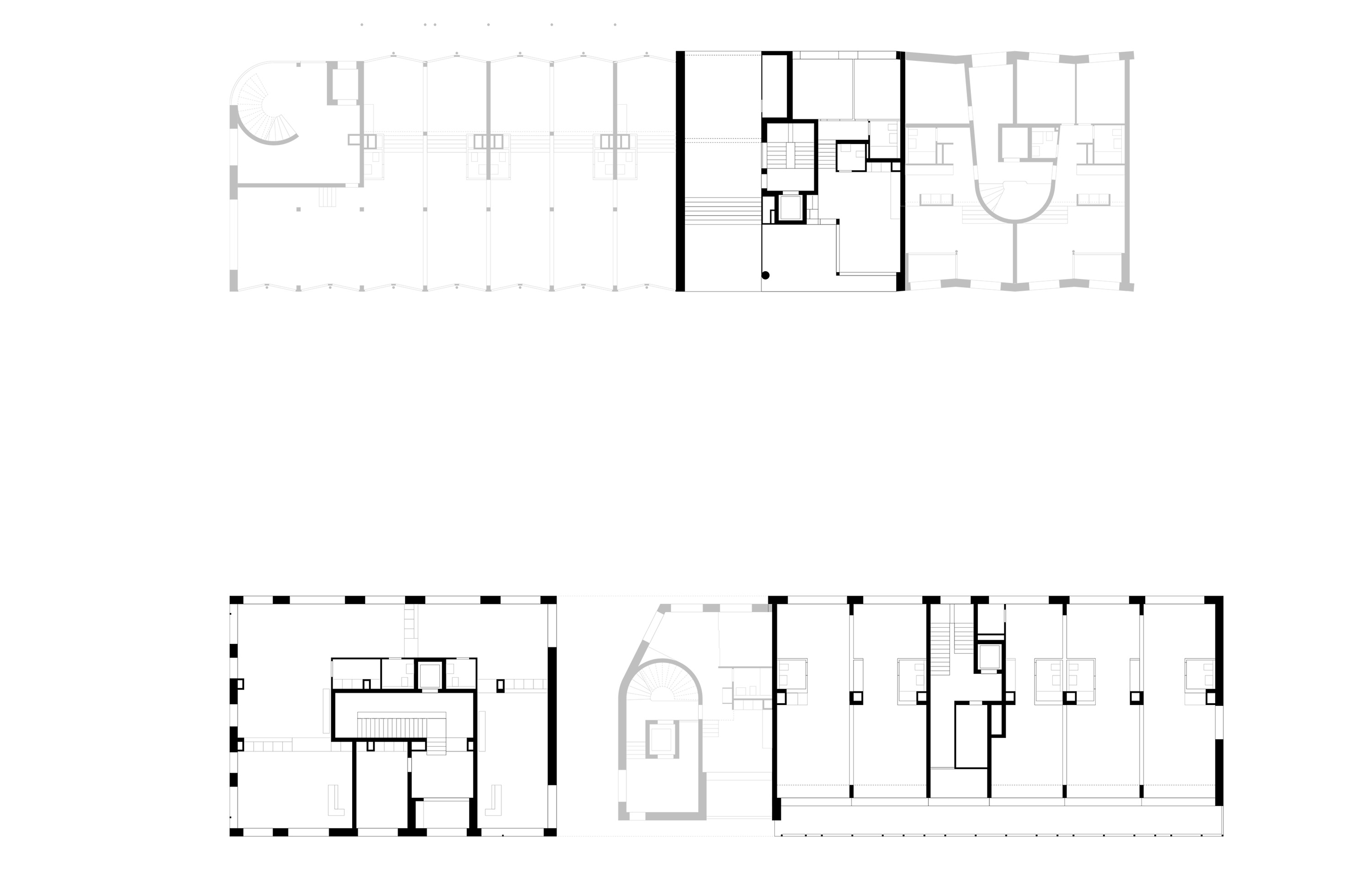
Ground floor / House C
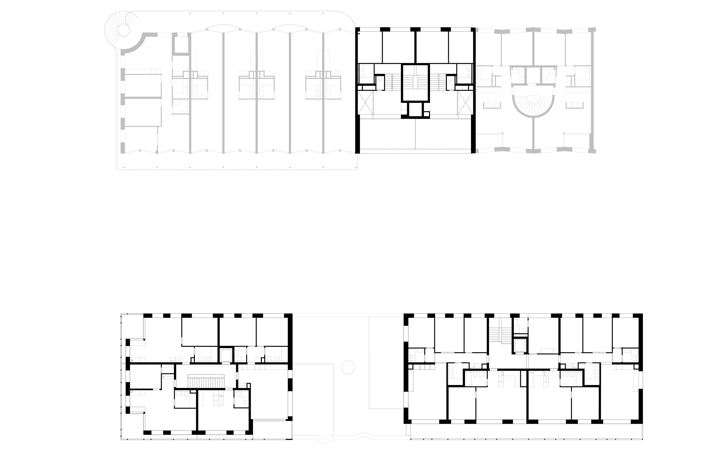
Standard floor plan / House C
4th floor / House C
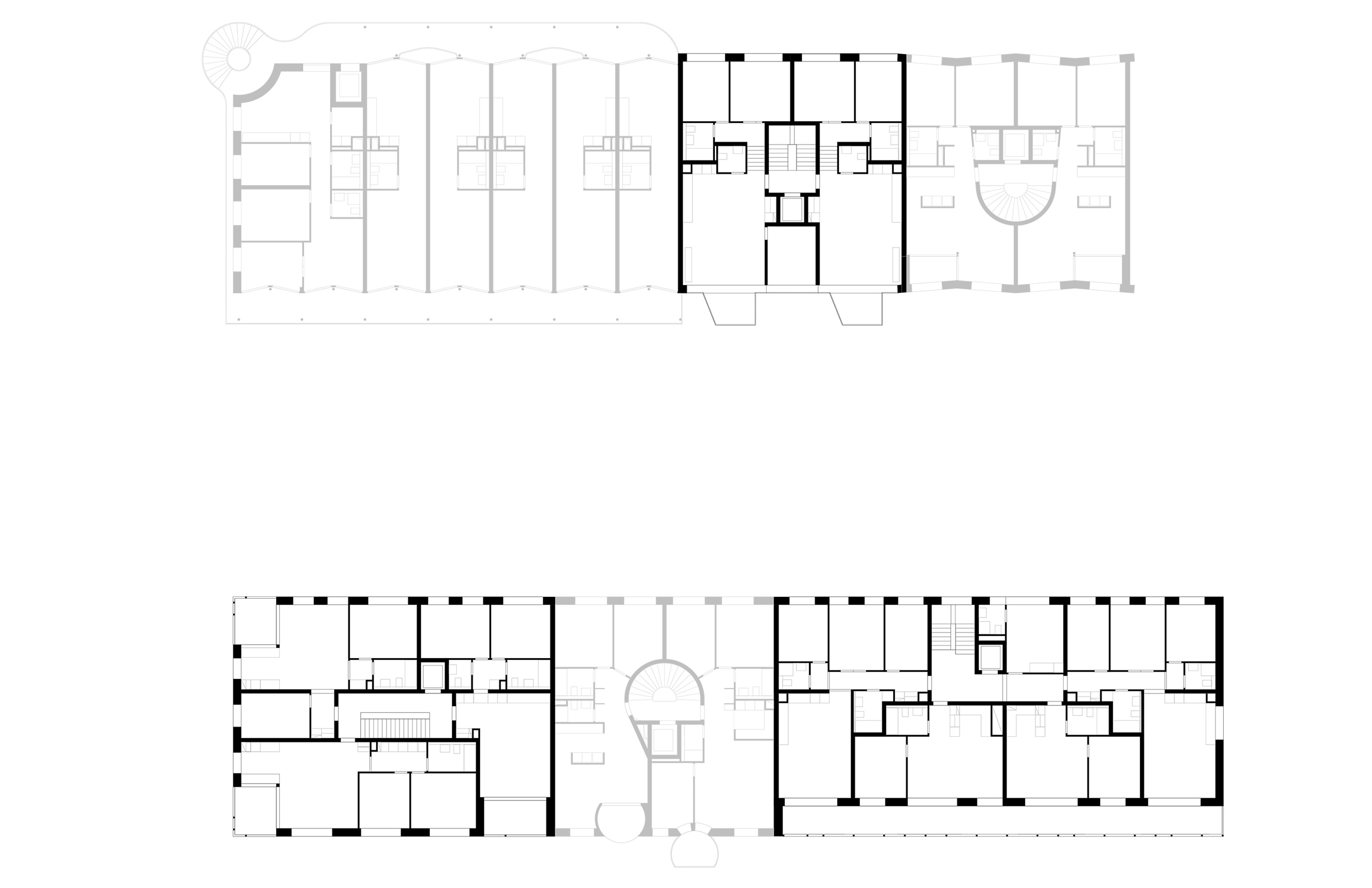
5th floor / House C
Ground floor / House H
Standard floor plan / House H
4th floor / House H
5th floor / House H
Figure-ground diagram Crissier
Visualization apartment with split-level
Visualization apartment
Ground floor / House C
Standard floor plan / House C
4th floor / House C
5th floor / House C
Ground floor / House H
Standard floor plan / House H
4th floor / House H
5th floor / House H
1/

L’Orée de Crissier

Crissier, Switzerland

Data

Year: 2017
Commission: Direct commission
Status: Completed 2025
Program: Housing development, Services, Urban planning

Brief: Residential buildings with service area on the ground floor.
Project area: 4’865 m²
GFA: 12’000 m²
Number of apartments: 112 (House C & H)

Client: Plazza Immobilienmanagement AG, Zurich
Architecture: Bachelard Wagner Architects, Basel, in collaboration with HHF Architekten, Basel & Tatiana Bilbao Estudio, Mexico
Team: Hervé Doutaz

Back to List