Bachelard Wagner Architekten Bachelard Wagner Architekten Bachelard Wagner Architekten
  • Projects
    • Selection
    • Status
    • Program
    • Year
    • Commission
  • Office
    • Contact
    • Team
    • Forum
  • Deutsch
  • English
Figure-ground diagram Winterthur
Visualisation I
Visualisation II
Ground floor
3rd floor - Care center and Cluster
5 / 7th floor - Care center
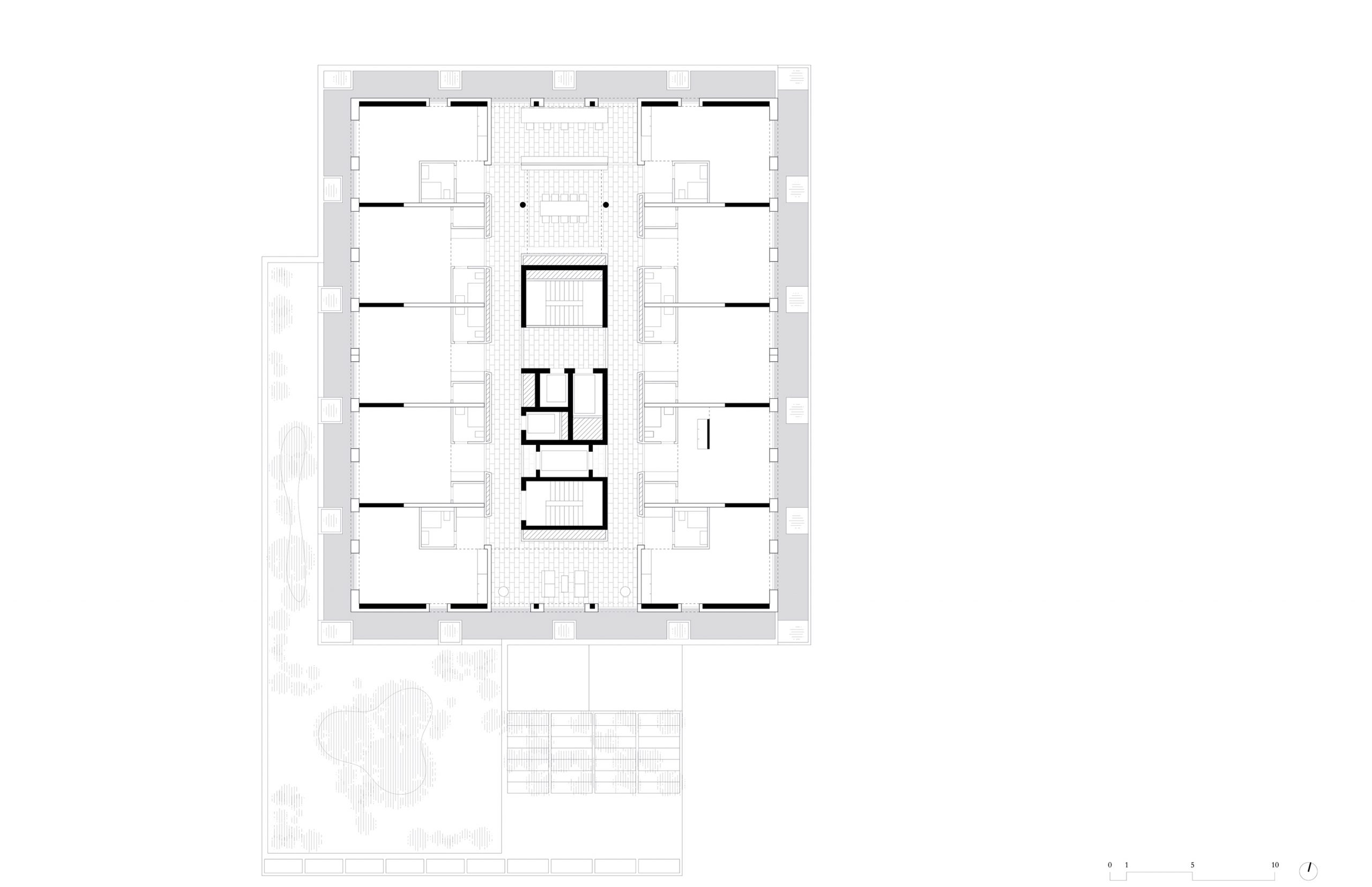
8 / 9th floor - Residential
11 to 16th floor - Residential
Section
Figure-ground diagram Winterthur
Visualisation I
Visualisation II
Ground floor
3rd floor - Care center and Cluster
5 / 7th floor - Care center
8 / 9th floor - Residential
11 to 16th floor - Residential
Section
1/

High-Rise Building Construction Sulzerallee Winterthur

Winterthur, Switzerland

Data
Text

Year: 2023
Commission: Feasibility study (preselection)
Status: Not realised
Program: Residential, Cluster apartments, Care center, Commercial spaces, Sulzerallee pocket park.

Brief: New construction on Sulzerallee with housing for all generations, a care center, commercial spaces, and a public park.

Project area: Gestaltungsplan «Umfeld Grüze»/ Baufeld 4
Floor area: 11‘668 m²
Number of apartments: 83
Anzahl Pflegestudios: 29
Anzahl Pflegezimmer: 24
Anzahl Clusterwohnungen: 5

Client: Oase Gruppe, Oase Service AG, Dübendorf
Architecture: Bachelard Wagner Architekten AG SIA BSA, Basel
Team: Cédric Bachelard, Anne Marie Wagner, Anouk André, Katerina Krupickova, Hervé Doutaz, Timothy Spielmann
Structural planning: Schnetzer Puskas Partner, Salomé Hug
Landscape architecture: Radschallpartner AG, Meilen, Sibylle Aubort Radschall, Regula Luder
Building technology: Waldhauser Hermann, Marco Waldhauser
Facade construction: Emmer Pfenninger, Steffi Neubert
Energy: Enerpeak AG, Mathiias Hoehn
Fire protection: KSI Brandschutz, Dominique Sterk

The vertical layering of functional units – services, care units, assisted living apartments, and regular apartments – serves as the basis for the volumetric shaping of the high-rise building. Projections and recesses indicate the functional characteristics of each floor group and result in localized structural transitions. From our perspective, the design is underpinned by a narrative verticality. The programmatic use volume, as well as the height limitation of sixty meters, define a relatively massive and tall volume with little “slenderness potential.” We take this narrative verticality as an opportunity to counteract it, conveying the sense of a tall building through the progressive step-back of horizontal building sections. The readability of the different user groups in the building’s appearance has a positive impact on the residents’ identification with the building. From a distance, the high-rise is broken into smaller units, resembling the character of the surrounding industrial landscape.
The high-rise building is positioned with its main entrance along the building line of Sulzerallee. A five-story wing extends out to the building line and stretches along Talackerstrasse to the southern property boundary. This provides both a flexible building area outside the high-rise footprint and the start of an urban building front along Talackerstrasse. On the side of the pocket park, the high-rise’s alignment is recessed from the neighboring service building. This creates an opening between the two building masses on the southern side of the pocket park, allowing for good sunlight exposure in the outdoor space.

Back to List