Bachelard Wagner Architekten Bachelard Wagner Architekten Bachelard Wagner Architekten
  • Projects
    • Selection
    • Status
    • Program
    • Year
    • Commission
  • Office
    • Contact
    • Team
    • Forum
  • Deutsch
  • English
Ensemble and space
Figure-ground diagram Eysins
Surrounding area
Situation
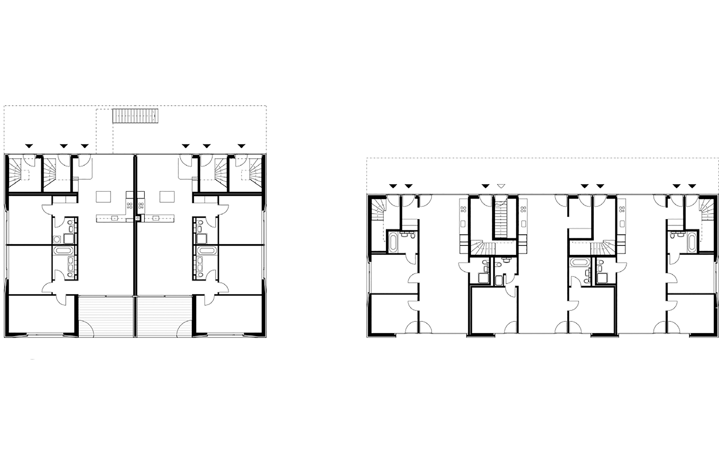
Ground floor
Upper floor
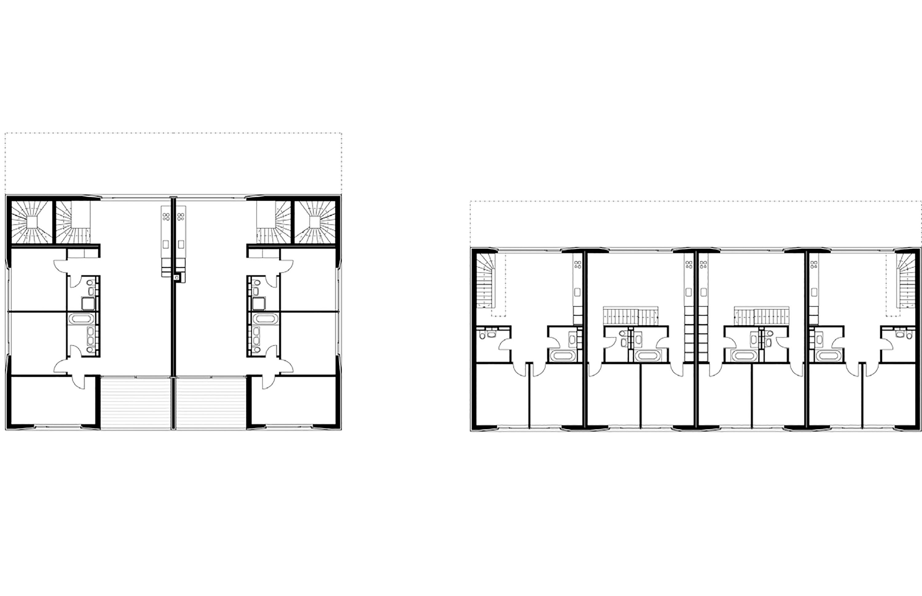
Attic
Ensemble and space
Figure-ground diagram Eysins
Surrounding area
Situation
Ground floor
Upper floor
Attic
1/

Apartment Buildings Eysins

Eysins, Switzerland

Data

Year: 2002 (before office foundation)
Commission: Direct commission
Status: Completed
Program: Urban planning, Residential

Brief: Densification of a small plot located in the outskirts of Nyon with apartment buildings at reasonable cost.
Number of Apartments: 19

Client: Private client
Architektur: Bachelard Geser Architekten, Basel
Photos: Cédric Bachelard, Jean-Michel Landecy, Basel

Back to List