Bachelard Wagner Architekten Bachelard Wagner Architekten Bachelard Wagner Architekten
  • Projects
    • Selection
    • Status
    • Program
    • Year
    • Commission
  • Office
    • Contact
    • Team
    • Forum
  • Deutsch
  • English
Entrance of Kindergarden
Group room facing Spatzenweg
Group room
Kitchen
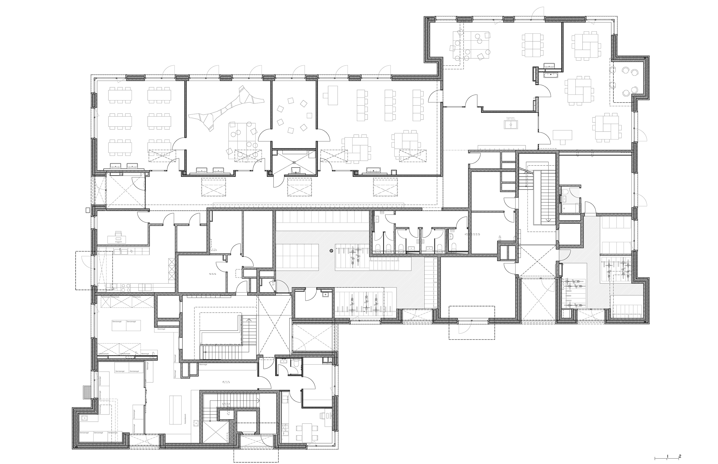
Floor plan as part of House H
Entrance of Kindergarden
Group room facing Spatzenweg
Group room
Kitchen
Floor plan as part of House H
1/

Kindergarden Mattenhof Zurich

Zurich-Schwamendingen, Switzerland

Data

Year: 2010
Commission: Study / 1st Prize (housing estate Mattenhof)
Status: Completed
Program: Education, Kindergarden

Brief: Kindergarden for the new housing estate Mattenhof.

Client: Kreisschulpflege Schwamendingen / City of Zurich
Architecture: Bachelard Wagner Architects, Basel
Team: Katja Müller, Patrick Ayer, Ines Müller
General contractor: HRS Real Estate AG, Basel
Landscape architecture: Berchtold Lenzin Landschaftsarchitekten, Basel
Structural engineering: Schnetzer Puskas Ingenieure AG, Basel
Domestic engineering: Planelement GmbH, Winterthur
Photos: Johannes Marburg, Geneva

Back to List